
KEIN RAUM FÜR GRAU! – NEUER RAUM FÜR BUNT!
LILLI BASTIAN, JILL BUGENINGS, DANIEL MISCH,
HANNES SCHÜSSLER, HUSSEIN SHAIKHOUN & MARIO STOLL
Kein Raum für Grau…
… mehr Raum für Bunt
Im Kurpark werden durch verschiedene Gartenkonzepte neue Nutzungsmöglichkeiten zwischen alte Wegeführungen geschaffen.
… mehr Raum zum Leben
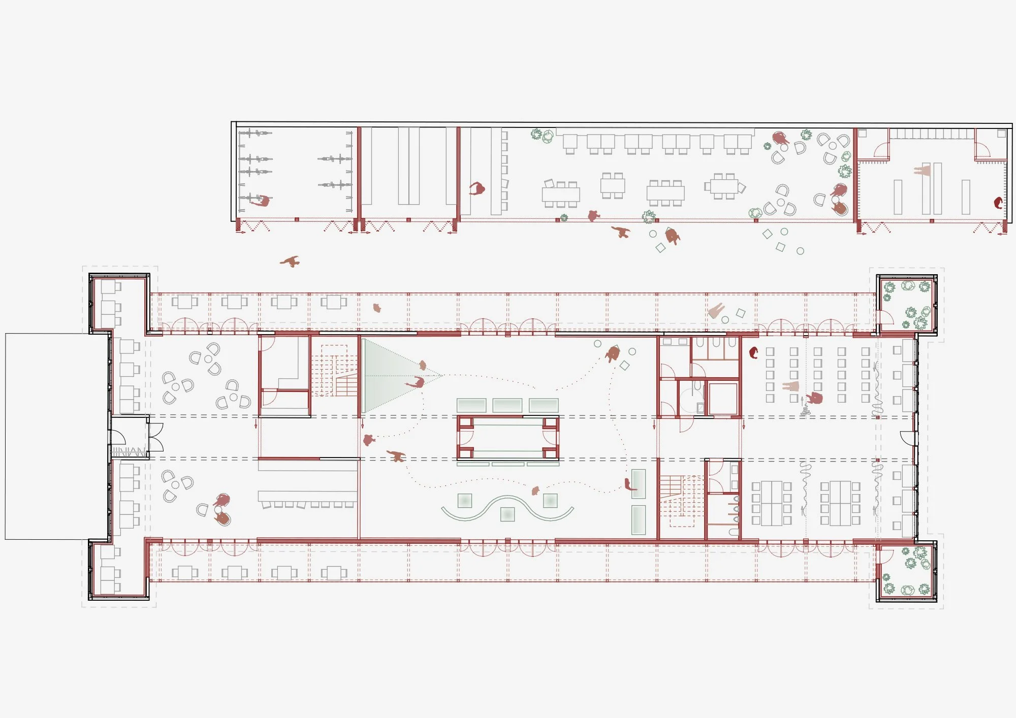
Die Bestandsstruktur des Logishaus wird erhalten, während neue Gemeinschaftsräume im EG und flexibel nutzbare Zimmer im OG subtil integriert werden.
… mehr Raum zum Erleben
Das Konzept des Badehauses vereint den Erhalt der historischen Substanz mit verschiedenen Veranstaltungsflächen. Ergänzt wird das Ensemble durch eine neue Brauerei.
STUDIENARBEIT BETREUT VON DEN PROFESSOR:INNEN VOLKMAR BLEICHER, DR. ULI JAKOB, SEBASTIAN JEHLE, MARTIN STUMPF, DR. KATHY MEISS & DR. MANUEL RAUSCH

















